UGiM Ozimek
Dokumentacja przetargu ograniczonego nr ZZP.KS - 0341/P12/10 na zadanie pn. Poprawa efektywności Gminnego Zespołu Szkół w Ozimku poprzez termomodernizację obiektu i wykorzystanie energii ze źródeł odnawialnych
DOKUMENTACJA GMINNEGO ZESPOŁU SZKÓŁ NR 1 W OZIMKU

SPECYFIKACJA ISTOTNYCH WARUNKÓW ZAMÓWIENIA - SIWZ (pdf) - do pobrania

PRZEDMIARY ROBÓT -
Docieplenie, kolorystyka i instlacja solarów - przedmiar
pompa ciepła - instalacje elektryczne
pompy ciepla - instlacje sanitarne, instalacje sanitarne str. 1, str.2, str.3, str.4

DOCIEPLENIE ELEWACJI:
specyfikacja techniczna wykonania i odbioru robót
projekt docieplenia i kolorystyki obiektu
szczegóły docieplenia obiektu - nr 1
szczegóły docieplenia obiektu - nr 2
szczegóły docieplenia obiektu - nr 3
szczegóły docieplenia obiektu - nr 4
szczegóły docieplenia obiektu - nr 5
szczegóły docieplenia obiektu - nr 6
szczegóły docieplenia obiektu - nr 7
szczegóły docieplenia obiektu - nr 8
szczegóły docieplenia obiektu - nr 9
szczegóły docieplenia obiektu - nr 10
szczegóły docieplenia obiektu - nr 11
szczegóły docieplenia obiektu - nr 12
BIOZ
plan zagospodarowania przestrzennego - mapa sytuacyjna

POMPA CIEPŁA:
schemat technologiczny
projekt budowlany instalacje sanitarne - opis
projekt elektryczny - opis
dane pompy nr 1
dane pompy nr 2
dane pompy nr 3
dobór węzła
zestawienie materiałów
wymienniki ciepła
dobór przeponowego naczynia wzbiorczego
schemat zasilania
instalacje elektryczne w węźle cieplnym
linia zasilająca
mapa sytuacyjna
kolektor rozdzielczy w studzience rew. ciepłej
kolektor rozdzielczy w studzience rew. zimnej
studzienka rew. zimna - rozmieszczenie otworów
studzienka rew. ciepła - rozmieszczenie otworów
rzuty studzienek rewizyjnych
studzienka rew. zimna - rozmieszczenie otworów
studzienka rew. ciepła - rozmieszczenie otworów
rzuty studzienek rewizyjnych
wymiennik gruntowy pionowy
schemat technologiczny kompakt. węzła grzewczego
węzeł cieplny - rzut
projekt zagosp. terenu
STWiOR

INSTALACJA SOLARÓW:
instalacja solarów - opis
orzeczenie o stanie technicznym montazu kolektorów słonecznych
schemat technologiczny kolektorów słonecznych
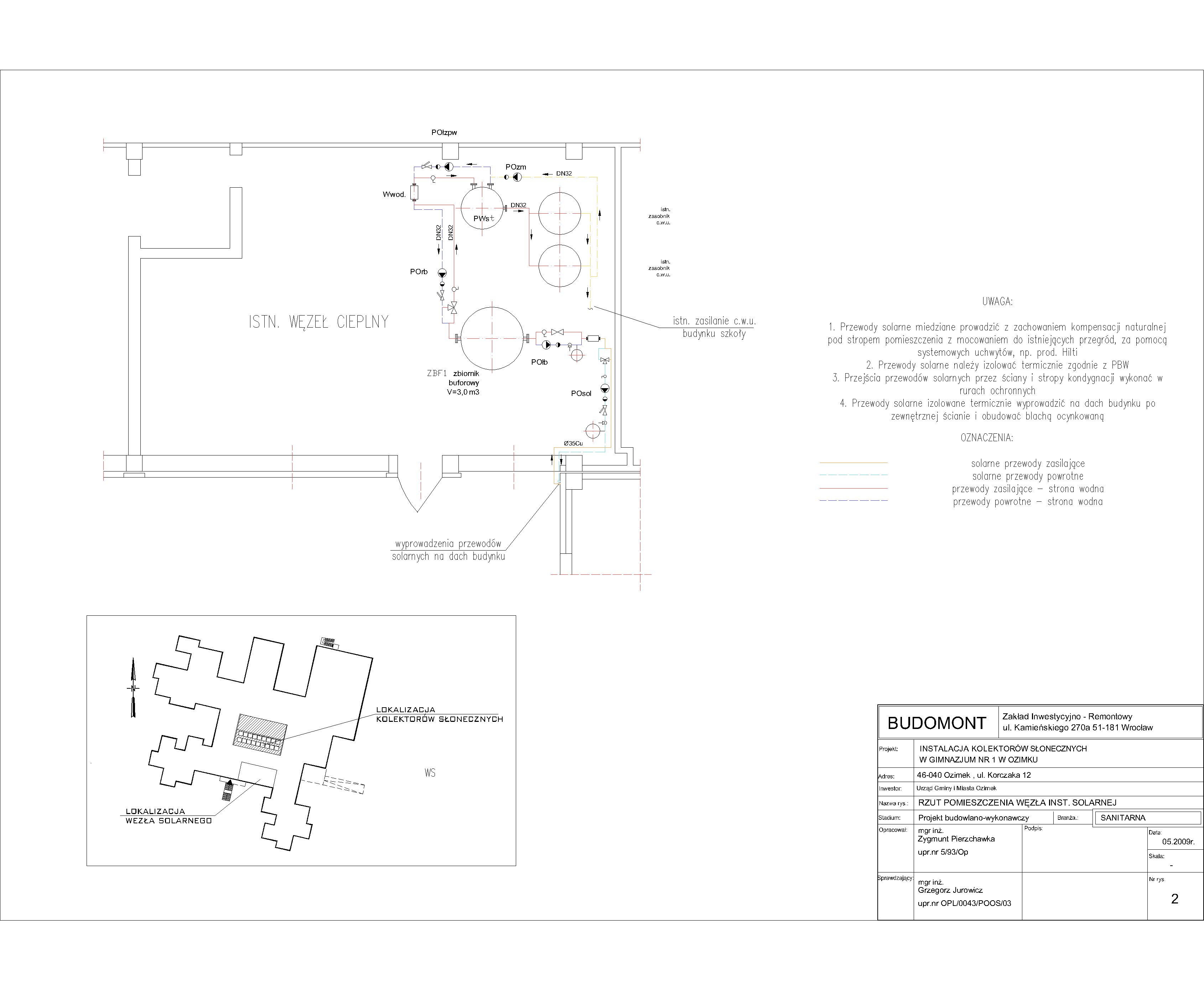
rzut pomieszczenia węzła instalacji solarnej
rzut kolektorów wraz z przekrojem
STWiOR

KOLORYSTYKA OBIEKTU:
kolorystyka cz.1
kolorystyka cz.2
kolorystyka cz.3
kolorystyka cz. 4
kolorystyka cz.5
kolorystyka cz.6
kolorystyka cz. 7
kolorystyka cz. 8
kolorystyka cz. 9
kolorystyka cz.10
BURMISTRZ OZIMKA
JAN LABUS

Wydrukuj tę stronę |
Gmina Ozimek ul. Ks.J. Dzierżona 4b |
| Data ostatniej aktualizacji: | 2010-10-15 17:58:57 |
|---|---|
| Opis ostatniej aktualizacji: | Dodano dokumentację przetargową przetargu ograniczonego nr ZZP.KS-0341/P12/10 |
| Za treść odpowiada: | Zastępca Burmistrza Marek Korniak, tel.:(77) 462 28 00, (77) 462 28 05, fax.:(77) 462 28 11, email:burmistrz@ugim.ozimek.pl |
| Zredagował: | Katarzyna Szewczyk Stanowisko ds. zamówień publicznych i pozyskiwania środków zewnętrznych., tel.:77 462 28 69, email:k.szewczyk@ugim.ozimek.pl |
| Liczba odsłon strony: | 905 |
Wydrukuj tę stronę